Quadrilocale in vendita

Vigonovo, Via Padova
€ 130.000
5 locali 5 locali
100 Mq 100 Mq
1 bagno 1 bagno

Quadrilocale in vendita

Vigonovo, Via Padova

Descrizione annuncio

Opportunità di investimento con inquilino garantito fino al 2030 – Appartamento 120 mq commerciali in zona centrale a Vigonovo

Proponiamo in vendita un appartamento che rappresenta una soluzione di investimento particolarmente interessante, grazie alla presenza di un inquilino già regolarmente locato, con contratto attivo e permanenza garantita fino al 2030. Questo permette all’acquirente di ottenere da subito una rendita stabile, senza necessità di ricerche, selezioni o tempi di vacanza dell’immobile.

L’abitazione si trova in posizione centrale a Vigonovo, un contesto ricercato per la presenza di servizi pubblici, negozi, collegamenti e comodità quotidiane che aumentano la sua attrattività sia dal punto di vista residenziale sia da quello finanziario.

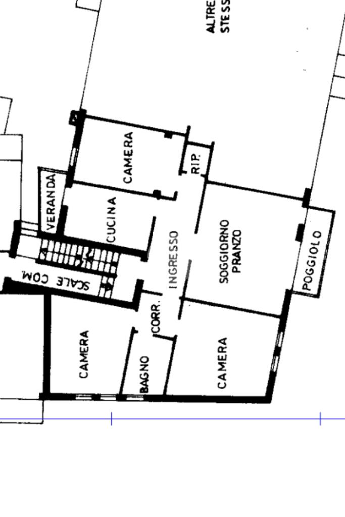
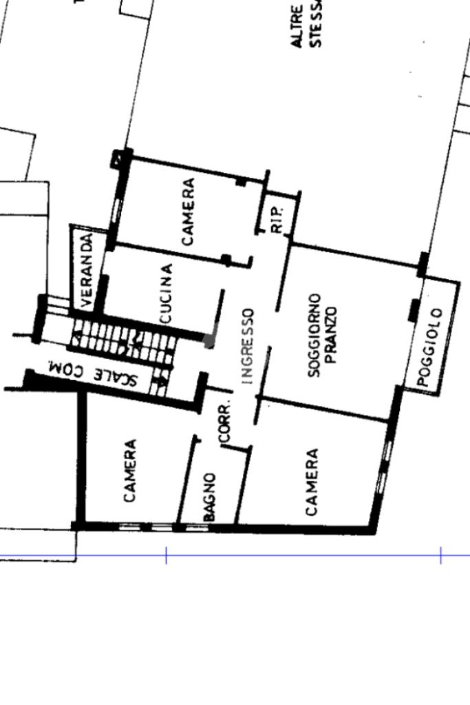
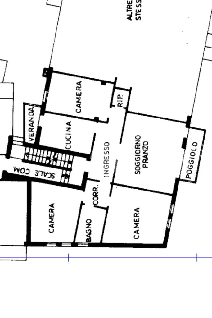
L’immobile dispone di 120 mq commerciali, comprensivi di appartamento e garage. Gli spazi interni sono stati progettati per garantire funzionalità e comfort, con una distribuzione razionale che valorizza ogni ambiente.
La zona giorno comprende una cucina abitabile e una veranda che aggiunge un’ulteriore superficie utile, ideale per uso lavanderia, ripostiglio o piccolo spazio relax.
La zona notte è composta da tre camere da letto: due matrimoniali, entrambe di ampia metratura e buona luminosità, e una camera singola facilmente adattabile anche a studio o stanza multiuso. Il bagno è finestrato, caratteristica sempre molto richiesta per comfort e ventilazione naturale.

Dal punto di vista tecnico, gli impianti idraulico, elettrico e di riscaldamento risalgono agli anni ’90, mantenendo comunque una struttura funzionale che potrà essere oggetto di eventuali aggiornamenti futuri secondo le esigenze dell’acquirente.
Un elemento di particolare rilevanza è il tetto completamente rifatto nel 2024, intervento che rappresenta un importante valore aggiunto sia dal punto di vista strutturale che economico, riducendo drasticamente le spese future per manutenzioni straordinarie.

Il garage privato completa la proprietà, elemento sempre più raro e ricercato soprattutto in zone centrali.

Nel complesso, questa soluzione si distingue per unire posizione strategica, spazi generosi e redditività immediata, rendendola particolarmente adatta a chi desidera un investimento solido, programmabile nel tempo e supportato da un inquilino affidabile già presente nell’immobile.

Mostra tutto

Nelle vicinanze

Trasporto pubblico Trasporto pubblico
Stra Centro
Stra Centro
2,2 Km
Stra Capolinea (via Fossolovara)
Stra Capolinea (via Fossolovara)
2,3 Km
Ricariche auto elettriche Ricariche auto elettriche
Piazza Guglielmo Marconi
570 m
Scuole Scuole
Ex Scuola Elementare "Leonardo da Vinci"
490 m
Scuole
500 m
Scuola Secondaria di I° grado "Alcide De Gasperi"
570 m
Scuola Elementare Statale "Guglielmo Marconi"
670 m
Farmacia Farmacia
Farmacia
1,4 Km
Farmacia
2,1 Km
Farmacia Villa Pisani
2,2 Km
Farmacia Perin
3,0 Km
Supermercati Supermercati
Eurospar
10 m
Prix
800 m
Alì Tombelle
2,2 Km
Alì Saonara
2,3 Km
Conad
2,9 Km
Negozi Negozi
Market
1,5 Km
Panificio Cacco Silvio
1,5 Km
Spiga d'Oro
1,6 Km
Bar Bar
Bar Birillo
1,6 Km
Ristoranti Ristoranti
Villa Sagredo
500 m
Pizzeria Ermes
1,8 Km
Trattoria ai Vivai
1,9 Km
Ristorante "Da Marziano"
2,1 Km
Strano ma Vero
2,7 Km
Mostra tutto

Caratteristiche

Rif.:
61145080
Piano:
2 di 1 (Piano alto)
Box:
1
Posti auto:
2
Balconi:
1
Terrazzi:
1
Mostra tutto
Prezzo Prezzo
€ 130.000
Rata mutuo Rata mutuo
€ 607 / mese
Spese annue Spese annue
€ 1.000
Proponi il tuo prezzoProponi il tuo prezzo

Altre caratteristiche

Classe Energetica

F
F
F
F
F
F
F
F
F
EP globale non rinnovabile:
179.63 kW h/m² anno
EP invernale del fabbricato:
EP estiva del fabbricato:
Anno di costruzione:
1970
Riscaldamento:
Autonomo
Tipo impianto:
A radiatori
Tipo alimentazione:
Metano

Ti interessa visionare l'immobile?

Fissa un appuntamento  Fissa un appuntamento

Richiedi informazioni

Clicca su Leggi per aprire l'informativa
* Questi campi sono obbligatori

Calcola il tuo mutuo

Semplice e senza impegno
Anticipo

( % )
Mutuo

( % )

pochi semplici passi

inserisci i tuoi dati
Questionario completato
Grazie per aver richiesto un appuntamento senza impegno con un nostro Consulente del Credito e Assicurativo.

Hai inserito correttamente tutti i dati necessari e a breve riceverai una e-mail con un link da convalidare per inviare i tuoi dati.
Affiliato
Kira Sao13 Sas
Via Piave, 72 35020 Saonara (PD)

Il nostro staff


  • Juan David Carraro
    Collaboratore

  • Jacopo Faccon
    Collaboratore

  • Jacopo Salmaso
    Affiliato

  • Luna Sanavia
    Coordinatrice

  • Armand Zili
    Collaboratore
Via Piave, 72 35020 Saonara (PD)
Zona: Saonara-Camin-Vigonovo
Mostra su mappa
Affiliato
Kira Sao13 Sas
Via Piave, 72 35020 Saonara (PD)

2026 Tecnocasa Franchising S.p.A. - P. IVA 08365160152 - Via Monte Bianco 60/A 20089 Rozzano (MI). Ogni agenzia ha un proprio titolare ed è autonoma. Privacy policy | Policy utilizzo | Cookie policy