Rustico in vendita

Vigonovo, Via Giuseppe Garibaldi
€ 125.000
Prezzo aggiornato
11 locali 11 locali
200 Mq 200 Mq
2 bagni 2 bagni

Rustico in vendita

Vigonovo, Via Giuseppe Garibaldi

Descrizione annuncio

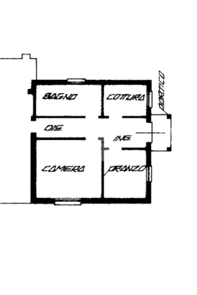
In vendita a Vigonovo un'interessante casa singola da ristrutturare, ideale per chi ricerca indipendenza e ampi spazi verdi. La proprietà sorge su un lotto complessivo di quasi 700mq, vanta un giardino privato di circa 500mq e si estende per una superficie abitativa di 200mq. La poszione, nelle vicinanze dell'argine, è particolarmente adatta per chi apprezza le attività all'aria aperta.

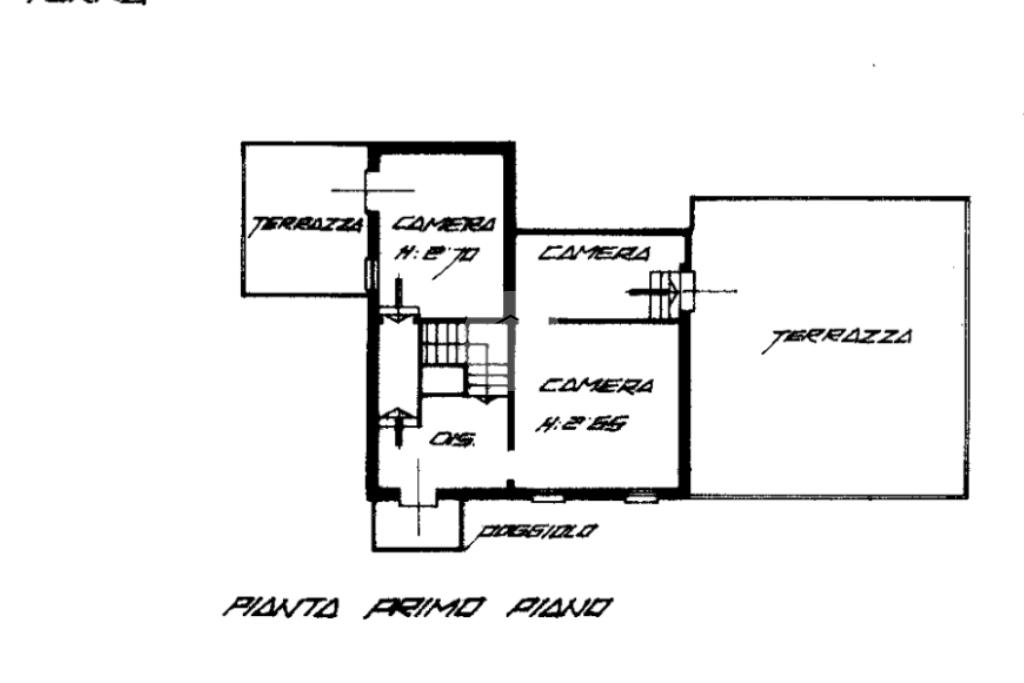
L'immobile è disposto su due piani. Il piano terra include 2 bagni, 2 camere, 2 portici, cucina, 2 sale da pranzo, 2 garage, cantina, magazzino e pollaio. Il piano superiore ospita 2 terrazzi e 3 camere da letto.

L'edificio necessita di interventi di ristrutturazione, offrendo l'opportunità di personalizzare gli interni e migliorare l'efficienza energetica, beneficiando delle agevolazioni fiscali disponibili ed è possibile realizzare una villa singola di prestigio o mantenere due unità abitative.

Questa soluzione immobiliare offre spazio, privacy e notevoli potenzialità di sviluppo, rappresentando un investimento di valore nel tempo.

Mostra tutto

Nelle vicinanze

Trasporto pubblico Trasporto pubblico
Stra Centro
Stra Centro
1,6 Km
Stra Capolinea (via Fossolovara)
Stra Capolinea (via Fossolovara)
1,8 Km
Ricariche auto elettriche Ricariche auto elettriche
Piazza Guglielmo Marconi
1,0 Km
Scuole Scuole
Scuola Secondaria di I° grado "Alcide De Gasperi"
930 m
Ex Scuola Elementare "Leonardo da Vinci"
930 m
Scuola Elementare Statale "Guglielmo Marconi"
1,0 Km
Scuole
1,0 Km
Farmacia Farmacia
Farmacia
1,4 Km
Farmacia Villa Pisani
1,7 Km
Farmacia
1,7 Km
Farmacia Perin
2,6 Km
Supermercati Supermercati
Eurospar
560 m
Prix
1,4 Km
Alì Tombelle
2,1 Km
Alì Saonara
2,8 Km
Conad
3,0 Km
Negozi Negozi
Market
1,5 Km
Panificio Cacco Silvio
1,5 Km
Spiga d'Oro
1,5 Km
Bar Bar
Bar Birillo
1,5 Km
Bar
3,0 Km
Ristoranti Ristoranti
Villa Sagredo
250 m
Pizzeria Ermes
1,2 Km
Ristorante "Da Marziano"
1,6 Km
Strano ma Vero
2,2 Km
Trattoria ai Vivai
2,5 Km
Mostra tutto

Caratteristiche

Rif.:
61179223
Piano:
2 di 2 (Piano su più livelli)
Box:
2
Terrazzi:
2
Camere da letto:
5
Arredamento:
Assente
Mostra tutto
Prezzo Prezzo
€ 125.000
Rata mutuo Rata mutuo
€ 593 / mese
Spese annue Spese annue
€ 0
Proponi il tuo prezzoProponi il tuo prezzo

Altre caratteristiche

Classe Energetica

G
G
G
G
G
G
G
G
G
EP globale rinnovabile:
260.53 kW h/m² anno
EP invernale del fabbricato:
EP estiva del fabbricato:
Anno di costruzione:
1967
Riscaldamento:
Autonomo
Tipo impianto:
A radiatori
Tipo alimentazione:
Metano

Prezzo ridotto di €1 (20%%)

Ti interessa visionare l'immobile?

Fissa un appuntamento  Fissa un appuntamento

Richiedi informazioni

Clicca su Leggi per aprire l'informativa
* Questi campi sono obbligatori

Calcola il tuo mutuo

Semplice e senza impegno
Anticipo

( % )
Mutuo

( % )

pochi semplici passi

inserisci i tuoi dati
Questionario completato
Grazie per aver richiesto un appuntamento senza impegno con un nostro Consulente del Credito e Assicurativo.

Hai inserito correttamente tutti i dati necessari e a breve riceverai una e-mail con un link da convalidare per inviare i tuoi dati.
Affiliato
Kira Sao13 Sas
Via Piave, 72 35020 Saonara (PD)

Il nostro staff


  • Jacopo Faccon
    Collaboratore

  • Jacopo Salmaso
    Affiliato

  • Luna Sanavia
    Coordinatrice

  • Armand Zili
    Collaboratore
Via Piave, 72 35020 Saonara (PD)
Zona: Saonara-Camin-Vigonovo
Mostra su mappa
Affiliato
Kira Sao13 Sas
Via Piave, 72 35020 Saonara (PD)

2026 Tecnocasa Franchising S.p.A. - P. IVA 08365160152 - Via Monte Bianco 60/A 20089 Rozzano (MI). Ogni agenzia ha un proprio titolare ed è autonoma. Privacy policy | Policy utilizzo | Cookie policy